- Ce sujet contient 13 réponses, 2 participants et a été mis à jour pour la dernière fois par
Didier Psaltopoulos, le il y a 6 années et 6 mois.
-
AuteurMessages
-
26/09/2019 à 08:00 #2827
Didier Psaltopoulos
Maître des clésJ’ai un p’tit soucis avec le modèle joint, c’est un fichier récupéré sur Partcommunity au format NX.

Je lui affecte une matière, mais impossible de le sélectionner dans la mise en plan pour mettre à jour le poids, de même il est impossible de créer des cotes en mise en plan ???
Aurais-tu une idée du problème et une solution pour le résoudre ?
D’avance merci
PS ; Ou puis-je joindre le fichier ?
26/09/2019 à 13:07 #2829Didier Psaltopoulos
Maître des clésFrédéric,
Je vais regarder comment joindre des fichiers sur mon site. En attendant, comme tu m’as déjà envoyé la part, je peux regarder et je te tiens au courant.
Cdlt
Didier
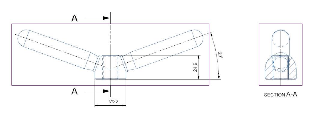
27/09/2019 à 05:28 #2836Didier Psaltopoulos
Maître des clésFrédéric,
1°) Concernant les dimensions, je n’ai aucun souci (image ci-dessous)
2°) Peux tu me répondre avec une copie d’écran de la méthode que tu veux utiliser pour récupérer le poids de la pièce
27/09/2019 à 05:49 #2837Didier Psaltopoulos
Maître des clésBonjour Didier,
Eh bien moi la seule côte que j’arrive à créer c’est le Ø du bras en sélectionnant la seule entité possible c’est à dire l’axe…

Pour la masse je bascule de dessin en modélisation et je mets à jour les paramètres, comme tu m’avais montré il ya longtemps maintenant…
Mais cela ne fonctionne pas avec cette pièce.
27/09/2019 à 08:18 #2838Didier Psaltopoulos
Maître des clésFrédéric,
Je ne comprends par pour les cotes. Concernant la masse, je crois me rappeler de la méthode proposée à l’époque mais envoie moi par mail ton plan.
Cdlt
Didier
27/09/2019 à 09:51 #2839Didier Psaltopoulos
Maître des clésFrédéric,
Je n’ai aucun souci avec ton format pour placer des dimensions, concernant le poids non plus. Mais attention, tu dois faire repointer les mesures sur le nouveau solide.
Je t’envoie le résultat par mail

Cdlt
Didier
29/09/2019 à 10:55 #2840Didier Psaltopoulos
Maître des clésFrédéric,
Vérifies ta version NX, voici la mienne et c’est la toute dernière disponible:

Cordialement
Didier
11/10/2019 à 08:25 #2856Didier Psaltopoulos
Maître des clésSalut Didier,
J’ai de nouveau récupérer une pièce qui génère les mêmes problèmes…
Je pense que cela viens de ma version, mais cela n’est quand même pas normal qu’a chaque version des bugs qui n’existaient pas précédemment se produise. A se demander si les mises à jour sont vérifiées…
Et tu sais bien que chez nous on ne peut pas installé les correctifs non officiel de notre sté.
11/10/2019 à 09:20 #2857Didier Psaltopoulos
Maître des clésFrédéric,
Merci de me dire quand même quelle est ta version, car je l’ai peut être sur mon poste pour tester.
Cordialement
Didier
14/10/2019 à 05:51 #2858Didier Psaltopoulos
Maître des clésVoilà ma version…

-
Cette réponse a été modifiée le il y a 6 années et 6 mois par
Didier Psaltopoulos.
14/10/2019 à 07:17 #2860Didier Psaltopoulos
Maître des clésFrédéric,
Tu as de la chance, je l’ai aussi pour un autre client. Je vais pouvoir tester et je te tiens au courant.
Cordialement
Didier
14/10/2019 à 07:41 #2861Didier Psaltopoulos
Maître des clésFrédéric,
Pas de soucis avec la même version que toi

On va se prévoir une connexion afin que je puisse t’aider et enlever ta réponse négative vis à vis des versions NX !!!
Cordialement
Didier
14/10/2019 à 09:34 #2862Didier Psaltopoulos
Maître des clésFrédéric,
Lors de notre connexion, nous avons mis en évidence la mauvaise organisation des calques du fichier. En effet, le solide est dans le calque 27 et comme tu ne gères pas les calques, tu n’avais pas pensé à cet détail.
De mon coté, dans mon environnement tous les calques sont visibles par défaut dans la mise en plan. Je n’ai donc pas tout de suite pensé aux calques.
Tout est correcte dans ta version 🙂

PS: n’hésites pas à ouvrir un post sur le nouvel outil de mesure !!!
Cordialement
Didier
15/10/2019 à 06:05 #2863Didier Psaltopoulos
Maître des clésProblème résolu, encore merci pour ton aide Didier
-
Cette réponse a été modifiée le il y a 6 années et 6 mois par
-
AuteurMessages
- Vous devez être connecté pour répondre à ce sujet.